返回

客户口碑

  
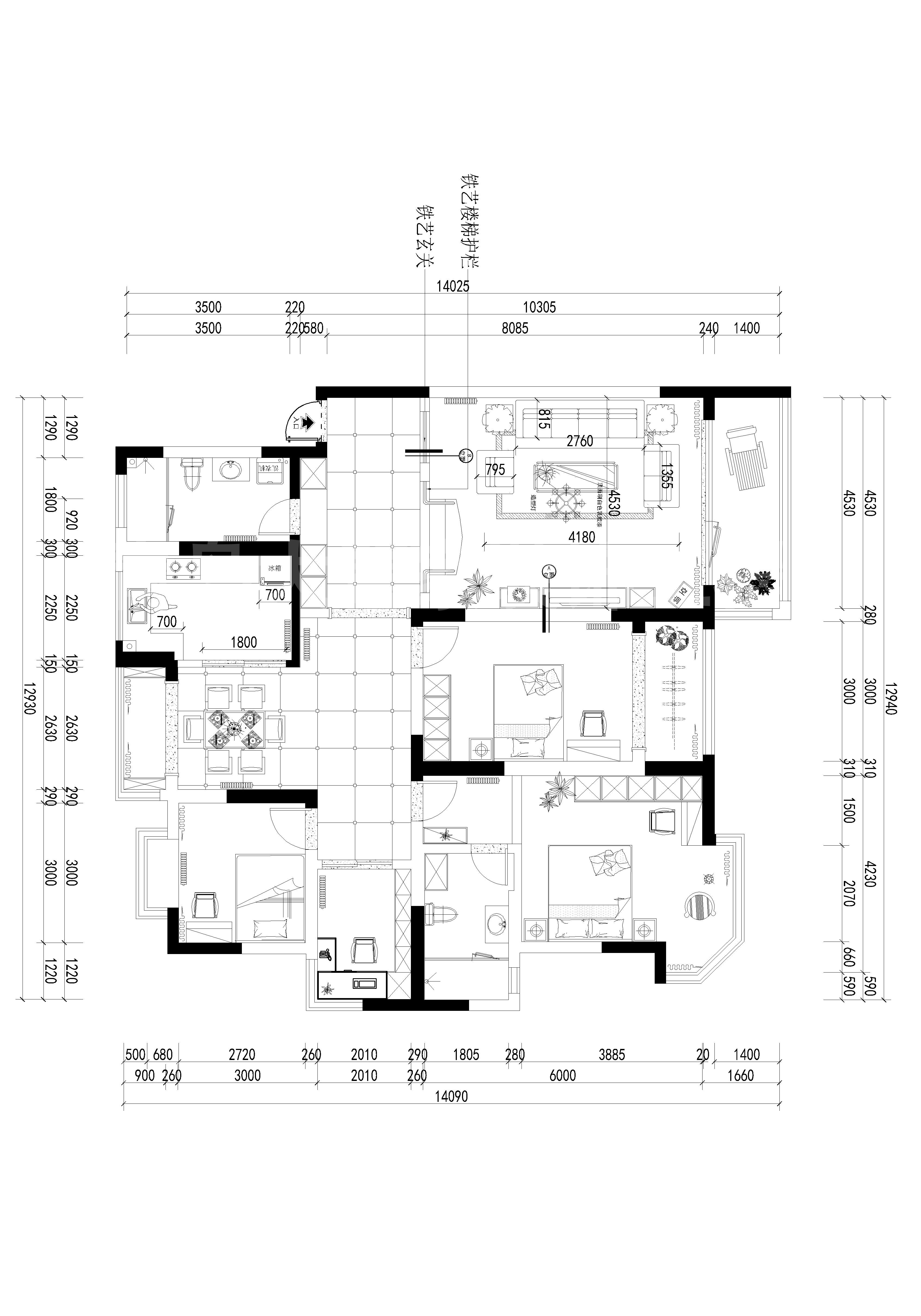
小区名称:绿城诚园
 
案例面积:120平米 
 
案例户型:平层
 
案例风格:美式风格
 
业主需求:
 
此案例绿城诚园的主人留学回国,受欧美文化的影响,想做一个美式装修。清新的美式,不想要古典沉稳的美式。

设计理念说明:

此案例追求风格统一的基础上,划分空间格局,采用美式装修元素勾勒风格特点。家具采用全部实木材质彰显
品质,没有太多笨重的造型体现出业主前卫,色彩的丰富意在表达房主的激情与活力,风格特点流漏出业主的留学背景。
 
整体家装:拎包装(主材,整体厨房,整体卫浴,轻工辅料,水电路改造,家具、配饰、个性化设计)
 
材料说明:全部材料为进口商品或国内一线品牌










Copyright@copy; 2018-2020 青岛大管家装饰工程有限公司 版权所有

技术支持:青岛永诚网络
回到顶部